NORTON ROAD
Charlotte, NC
NEW CARRAIGE HOUSE, RENOVATION & ADDITION
This home has a special place in my heart. It belongs to one of my dearest friends and roommate at Wofford, Catherine, and her husband, Hunter. They met and dated all through college, so it feels like we’re all back in our dorm room together whenever I visit.
Designing a new addition often requires balancing the charm of an old home with the needs of modern living, particularly in historic neighborhoods where the size of everything is relatively smaller and more compact. For Catherine and Hunter, their 1920s Tudor in Charlotte’s Myers Park neighborhood was in need of additional bedroom space, and a new detached garage to replace the existing one. While two-car garages are common for new houses, creating one for a historic home, with storage and a small guest suite, is tricky. The design challenge lies in the differing proportions of a garage, based on the scale of a car, and a house, which is scaled to fit people. Before beginning the design work, a study was done on typical garage sizes, circulation requirements, and clearances that cars and their users require to ensure that the project was feasible.
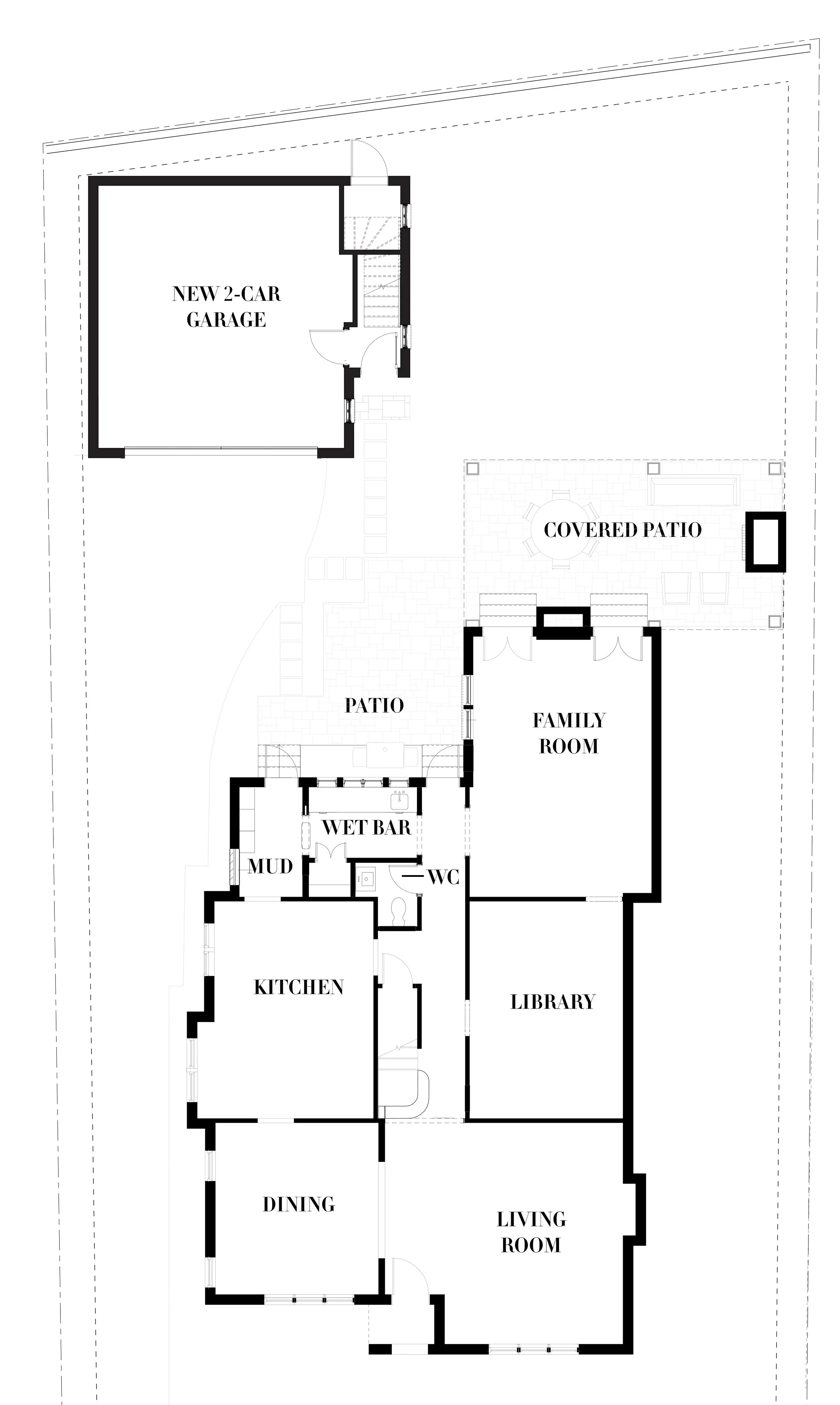
For the main house, Catherine and Hunter requested a larger bedroom for their oldest daughter, en suite bathrooms for all three girls, and a second floor laundry room. Moving the laundry room upstairs opened up space on the first floor to reconfigure the mudroom and powder bath, creating room for a new scullery/wet bar, and better circulation throughout the lower level. Outside, a new patio and covered porch off of the kitchen and family room, respectively, creates a seamless connection between indoor and outdoor spaces, tying together the garage and main house.
Existing House
Existing Garage
Site Plan
DESIGN PROCESS
use arrows to view images
Studying the design and construction methods of Tudor architecture, as well as carriage houses of the same era, provided details that give the new garage a sense of history and permanence.
EXTERIOR
Typical Carriage House/Garage, 1930s
Tudor Stable & Coach House, 1890s
To reduce the garage's visual impact, its massing is broken down into smaller components. The garage and second-floor apartment are combined into one volume, while the stairway is treated as a separate element. Setting the stair entry back creates variation and movement in the façade, decoupling it from the main structure. A garage door designed to resemble the smaller, double doors of old carriage houses helps reduce the perceived size, making it more proportional to a human scale. Tudor-style roof dormers increase the second-floor's usable space while keeping the roofline low. Additional historic details from the main house—such as half-timbering, stucco, narrow windows, and decorative brickwork—add texture and visually unify the two buildings.
Garage - Front Elevation
Garage - Side Elevation
For the addition, the architectural language of the existing house is maintained, featuring a half-timbered and stucco façade with brick at the base. The existing chimney is extended to clear the new second-floor roofline, and it is split into two smaller flues with decorative brick detailing, referencing traditional Tudor design elements. A new outdoor patio and cooking area is positioned next to the kitchen and family room. The covered patio is topped with a copper metal roof, and an outdoor fireplace is included to ensure the space can be enjoyed year-round.
Main House - Rear Elevation

