PEACHTREE
RENOVATION & ADDITION
Raleigh, NC
The first time I stepped foot into this home was in 2008. Jim, forever the host, was having his first house party. He smoked a whole pig, daytime turned into nighttime, and I probably left early because I was still in grad school. The details are fuzzy, but I can bet my now husband, Michael, woke up with a headache and an eau de bourbon and pork…
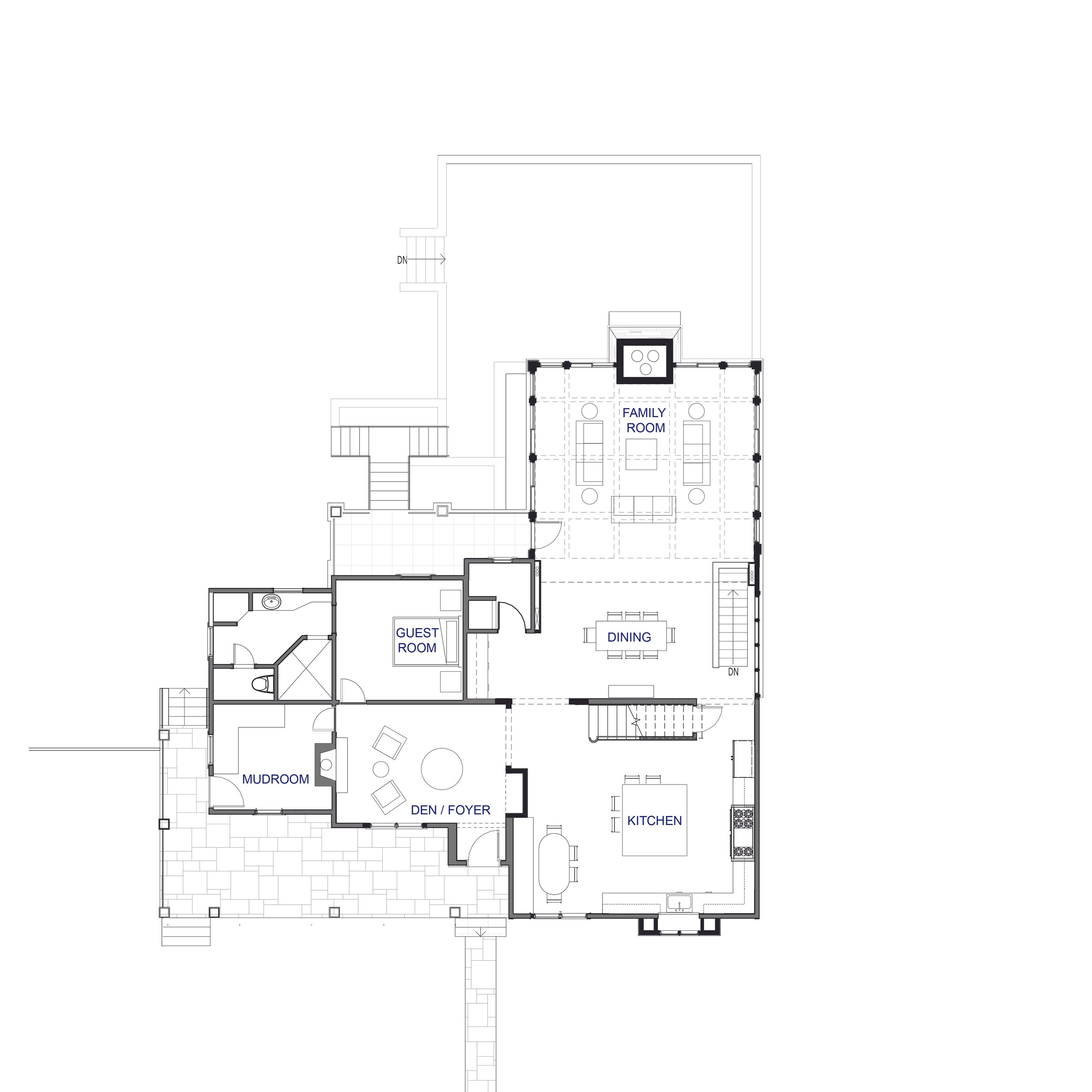
Fast forward roughly 12 years; marriage to the incomparable Catherine, two kids, and two additions to the original home. It was 2020, they were expecting their third child, and as the pattern suggests, a third renovation and addition. We were in the midst of Covid, and with it came the need for a home office, and places for everyone to escape to. So what began as a simple ‘refresh’ and nursery, became an overhaul of the entire home, save the Primary Suite. They had gone up, forward, side to side; the only remaining options were to go back and down. By digging out a lower level, we gained an additional 400 SF, and could contain all of Jim’s hobbies to one floor. a gift for a patient wife. A large family room and two additional bedrooms were added above.
Upon completion, the 1000 sf American Small House style “bachelor pad” transformed into a 5000 sf home for a family of five, and a St. Bernard, Sandy.
Hover for Before & After
Site Plan
BASEMENT
For the basement, Jim wanted to utilize design elements from his favorite place, Japan. Characterized by simplicity, harmony, and a deep appreciation for nature, the elements used also facilitated the practical programmatic needs for the wine storage, full bathroom, and prep kitchen, with a focus on minimalist details and materiality.
MINIMALIST DETAILS
Wall paneling is used to conceal multiple programmatic elements. The entry to the bathroom and wine cellar, the kitchen, and additional storage are all integrated into the wall system.
MATERIALITY
The design follows a traditional Japanese approach by implementing natural materials: Plaster, Oak, Concrete, and Brass. The juxtaposition of this limited palate further emphasizes their materiality, enhancing the contrast between rough and smooth, translucent and opaque.
Design Process
use arrows to view next image
EXTERIOR
Several updates were made to elevate the existing home’s exterior appearance. Collectively, the small details enhanced the overall composition of the house, to achieve Catherine’s desire for a “grown-up, forever home”.
Adding a Pennsylvania bluestone veneer to the foundation gives the home a weighted base that breaks up its three-story façade. Carefully detailed window and door conditions create the impression that the stone is the primary wall material. The existing wood porches are replaced with bluestone slabs, and the new stone retaining walls carry the material through the site.
The windows in the family room allow it to double as a sunroom and offer commanding, 180 degree views of the property. An overhanging roof shields the late afternoon sun. The upper level, with lap siding, is inset from the sunroom below. These design decisions add variation to the exterior façade which, in turn, enhances the experiential richness of the rooms inside.
Rear Elevation
TRIM DETAILS
By referencing historical precedents, carefully designed wall paneling elevates the formality of the existing living room. The introduction of new trim throughout the house ties the new construction to the old.

